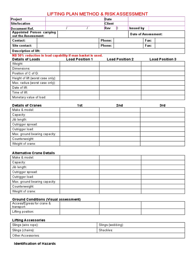
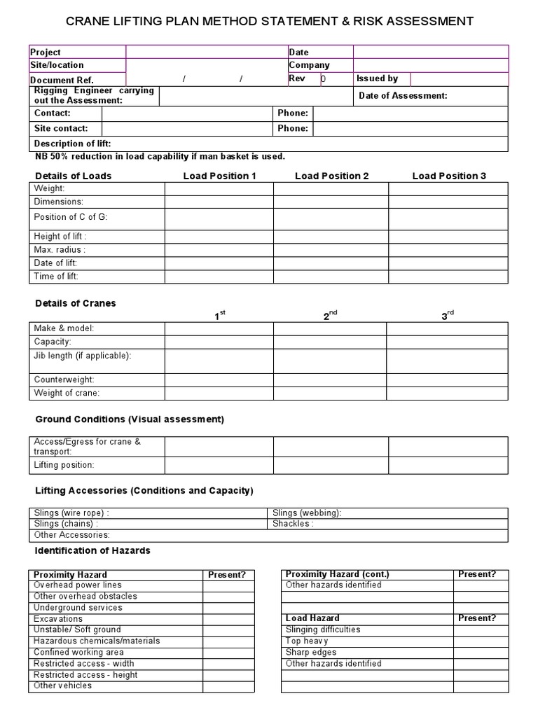
Crane Lift Method Statement . Find below safe work lifting plan template for use in crane lifting process. For completion before a lifting operation under your control and supply to the crane operating.  british standard bs 7121part 1 2006 sets out an acceptable standard for managing lifting operations using cranes on. The general purpose is to make sure that a safe system of work (ssow) applies to lifting, moving, and shifting material at site activities;. This method statement has been prepared and based on the information supplied by site management, together with the site inspection, risk.
        
         
         
        from www.scribd.com 
     
        
        Find below safe work lifting plan template for use in crane lifting process. The general purpose is to make sure that a safe system of work (ssow) applies to lifting, moving, and shifting material at site activities;.  british standard bs 7121part 1 2006 sets out an acceptable standard for managing lifting operations using cranes on. For completion before a lifting operation under your control and supply to the crane operating. This method statement has been prepared and based on the information supplied by site management, together with the site inspection, risk.
    
    	
            
	
		 
	 
         
    Work Method Statements For Lifting Rev.00 20150811 PDF Crane 
    Crane Lift Method Statement  The general purpose is to make sure that a safe system of work (ssow) applies to lifting, moving, and shifting material at site activities;. This method statement has been prepared and based on the information supplied by site management, together with the site inspection, risk.  british standard bs 7121part 1 2006 sets out an acceptable standard for managing lifting operations using cranes on. Find below safe work lifting plan template for use in crane lifting process. For completion before a lifting operation under your control and supply to the crane operating. The general purpose is to make sure that a safe system of work (ssow) applies to lifting, moving, and shifting material at site activities;.
            
	
		 
	 
         
 
    
         
        From sitemate.com 
                    Cranes Safe Work Method Statement (Mobile cranes, truck, operations) Crane Lift Method Statement   british standard bs 7121part 1 2006 sets out an acceptable standard for managing lifting operations using cranes on. Find below safe work lifting plan template for use in crane lifting process. This method statement has been prepared and based on the information supplied by site management, together with the site inspection, risk. For completion before a lifting operation under. Crane Lift Method Statement.
     
    
         
        From methodstatementhq.com 
                    Lifting Plan Template Sample for Crane Lift HSE Standard Method Crane Lift Method Statement  This method statement has been prepared and based on the information supplied by site management, together with the site inspection, risk. For completion before a lifting operation under your control and supply to the crane operating. The general purpose is to make sure that a safe system of work (ssow) applies to lifting, moving, and shifting material at site activities;.. Crane Lift Method Statement.
     
    
         
        From www.vrogue.co 
                    Crane Lifting Plan Method Statement And Risk Assessme vrogue.co Crane Lift Method Statement  Find below safe work lifting plan template for use in crane lifting process. This method statement has been prepared and based on the information supplied by site management, together with the site inspection, risk.  british standard bs 7121part 1 2006 sets out an acceptable standard for managing lifting operations using cranes on. For completion before a lifting operation under. Crane Lift Method Statement.
     
    
         
        From www.scribd.com 
                    Crane Lifting Plan Lifting Operation Method Statement/Lift Plan & Risk Crane Lift Method Statement  The general purpose is to make sure that a safe system of work (ssow) applies to lifting, moving, and shifting material at site activities;.  british standard bs 7121part 1 2006 sets out an acceptable standard for managing lifting operations using cranes on. Find below safe work lifting plan template for use in crane lifting process. For completion before a. Crane Lift Method Statement.
     
    
         
        From ebguide.weebly.com 
                    Crane lift method statement ebguide Crane Lift Method Statement  Find below safe work lifting plan template for use in crane lifting process. This method statement has been prepared and based on the information supplied by site management, together with the site inspection, risk.  british standard bs 7121part 1 2006 sets out an acceptable standard for managing lifting operations using cranes on. The general purpose is to make sure. Crane Lift Method Statement.
     
    
         
        From vicatraining.weebly.com 
                    Crane lift plan method statement vicatraining Crane Lift Method Statement  Find below safe work lifting plan template for use in crane lifting process. This method statement has been prepared and based on the information supplied by site management, together with the site inspection, risk. For completion before a lifting operation under your control and supply to the crane operating.  british standard bs 7121part 1 2006 sets out an acceptable. Crane Lift Method Statement.
     
    
         
        From ebguide.weebly.com 
                    Crane lift method statement ebguide Crane Lift Method Statement  For completion before a lifting operation under your control and supply to the crane operating. This method statement has been prepared and based on the information supplied by site management, together with the site inspection, risk. Find below safe work lifting plan template for use in crane lifting process.  british standard bs 7121part 1 2006 sets out an acceptable. Crane Lift Method Statement.
     
    
         
        From naturalsubtitle.weebly.com 
                    Crane lift plan method statement naturalsubtitle Crane Lift Method Statement   british standard bs 7121part 1 2006 sets out an acceptable standard for managing lifting operations using cranes on. This method statement has been prepared and based on the information supplied by site management, together with the site inspection, risk. For completion before a lifting operation under your control and supply to the crane operating. The general purpose is to. Crane Lift Method Statement.
     
    
         
        From www.scribd.com 
                    Special Lifting work method statement Crane (Machine) Elevator Crane Lift Method Statement  Find below safe work lifting plan template for use in crane lifting process. This method statement has been prepared and based on the information supplied by site management, together with the site inspection, risk. The general purpose is to make sure that a safe system of work (ssow) applies to lifting, moving, and shifting material at site activities;. For completion. Crane Lift Method Statement.
     
    
         
        From www.scribd.com 
                    Level 2 Crane Lifting Plan Method Statement & Risk Assessment PDF Crane Lift Method Statement   british standard bs 7121part 1 2006 sets out an acceptable standard for managing lifting operations using cranes on. The general purpose is to make sure that a safe system of work (ssow) applies to lifting, moving, and shifting material at site activities;. For completion before a lifting operation under your control and supply to the crane operating. Find below. Crane Lift Method Statement.
     
    
         
        From lindasunny.weebly.com 
                    Crane lift method statement lindasunny Crane Lift Method Statement  The general purpose is to make sure that a safe system of work (ssow) applies to lifting, moving, and shifting material at site activities;. Find below safe work lifting plan template for use in crane lifting process.  british standard bs 7121part 1 2006 sets out an acceptable standard for managing lifting operations using cranes on. For completion before a. Crane Lift Method Statement.
     
    
         
        From www.scribd.com 
                    Work Method Statements For Lifting Rev.00 20150811 PDF Crane Crane Lift Method Statement   british standard bs 7121part 1 2006 sets out an acceptable standard for managing lifting operations using cranes on. For completion before a lifting operation under your control and supply to the crane operating. The general purpose is to make sure that a safe system of work (ssow) applies to lifting, moving, and shifting material at site activities;. Find below. Crane Lift Method Statement.
     
    
         
        From www.scribd.com 
                    Routine Lift Plan For All CraneGrove GMK 50 Ton PDF Crane (Machine Crane Lift Method Statement   british standard bs 7121part 1 2006 sets out an acceptable standard for managing lifting operations using cranes on. For completion before a lifting operation under your control and supply to the crane operating. Find below safe work lifting plan template for use in crane lifting process. This method statement has been prepared and based on the information supplied by. Crane Lift Method Statement.
     
    
         
        From www.scribd.com 
                    Crane Lifting Plan and Method Statement PDF Crane (Machine) Risk Crane Lift Method Statement  The general purpose is to make sure that a safe system of work (ssow) applies to lifting, moving, and shifting material at site activities;. Find below safe work lifting plan template for use in crane lifting process. For completion before a lifting operation under your control and supply to the crane operating.  british standard bs 7121part 1 2006 sets. Crane Lift Method Statement.
     
    
         
        From lulascale.weebly.com 
                    Crane lift plan method statement lulascale Crane Lift Method Statement   british standard bs 7121part 1 2006 sets out an acceptable standard for managing lifting operations using cranes on. This method statement has been prepared and based on the information supplied by site management, together with the site inspection, risk. The general purpose is to make sure that a safe system of work (ssow) applies to lifting, moving, and shifting. Crane Lift Method Statement.
     
    
         
        From lopavet.weebly.com 
                    Crane lift method statement lopavet Crane Lift Method Statement  For completion before a lifting operation under your control and supply to the crane operating.  british standard bs 7121part 1 2006 sets out an acceptable standard for managing lifting operations using cranes on. Find below safe work lifting plan template for use in crane lifting process. The general purpose is to make sure that a safe system of work. Crane Lift Method Statement.
     
    
         
        From collegeklo.weebly.com 
                    How to read a crane lift chart collegeklo Crane Lift Method Statement  For completion before a lifting operation under your control and supply to the crane operating. Find below safe work lifting plan template for use in crane lifting process.  british standard bs 7121part 1 2006 sets out an acceptable standard for managing lifting operations using cranes on. This method statement has been prepared and based on the information supplied by. Crane Lift Method Statement.
     
    
         
        From www.scribd.com 
                    Crane Lifting Plan Method Statement and PDF Crane (Machine) Business Crane Lift Method Statement  The general purpose is to make sure that a safe system of work (ssow) applies to lifting, moving, and shifting material at site activities;. Find below safe work lifting plan template for use in crane lifting process. This method statement has been prepared and based on the information supplied by site management, together with the site inspection, risk.  british. Crane Lift Method Statement.